Lululemon上海旗舰店 | AIM恺慕建筑设计
来源:匿名网友投稿 2023-12-08
欢迎来到全球最大的 Lululemon 旗舰店。落址于上海的中心区域,它不仅仅是一家店铺,也是运动与时尚融合的终极场域,更是一场视觉盛宴,带来全方位的感官体验,向运动之美致敬。
凝练运动精神
一座旗舰店应体现品牌的核心价值,并与其所在的城市建立精神连结。在这一设定下,Lululemon意图打造全球化的社群,以促进“日常运动”为使命,深耕于上海这座全球最活跃的城市之一。通过这个项目,我们希望能够捕捉并凝聚这种特别的二元性:活力上海的喧嚣繁忙与这座城市里的人们蓬勃的运动能量。
▼立面概览 ©Dirk Weiblen

点燃活力:画布式的变化立面
店铺立面营造出开放、有亲和力的氛围,同时也是一幅不断变化的画布,捕捉运动的精神。行人沿街经过时,能够感受到店铺传递出来的强烈存在感和吸引力,立面不仅激活了店铺本身,也激活了街道。巨大的弧形玻璃窗中心是Lululemon的标志性Logo,过往的人们可以透过玻璃窗看到店铺内三层高的楼梯空间和人们的活动。室内外之间的互动营造出充满活力的运动氛围,呼应了Lululemon的品牌价值。
▼分析图 ©AIM恺慕建筑设计

▼立面近景 ©Dirk Weiblen


有趣的空间编排
进入店铺,标志性的 Lululemon 图案会转变为更加富有能量的表达方式。这种转变体现在一系列动态变化的元素上,它们与店铺的空间布局发生有趣地互动:穿过墙壁,甚至延伸到天花板,贯穿店铺的两层空间,然后巧妙地消失在背景中。
▼层次丰富的室内空间 ©Dirk Weiblen


▼温暖舒适的材质 ©Dirk Weiblen

▼统一的设计语言 ©Dirk Weiblen

这种有趣的转变不仅与美学有关,更是将运动转化为动线系统的精心编排。当人们在店铺内探索时,他们会发现在空间内蜿蜒延伸的墙壁不仅仅是建筑元素——引导人们穿过商店,如同顾客的同伴,鼓励他们带着能量和目的在空间中探索。在购买运动装备时,人们会自然感知并沉浸在 Lululemon的能量世界中。这是一场交织着设计与运动的零售冒险,将购物行为转变为引人入胜且充满活力的体验。
▼空间元素特写 ©Dirk Weiblen

▼墙面天花造型 ©Dirk Weiblen


一直以来,Lululemon 关注的不仅仅是服装;而是如何将人们聚集在一起、建立连结。在AIM为Lululemon打造的这家旗舰店中,运动、设计和社群互相交融:设计提供灵感、社群成为重要阵地、共同致敬运动之美。
▼细部 ©Dirk Weiblen

▼多样的肌理 ©Dirk Weiblen


▼夜景 ©Dirk Weiblen


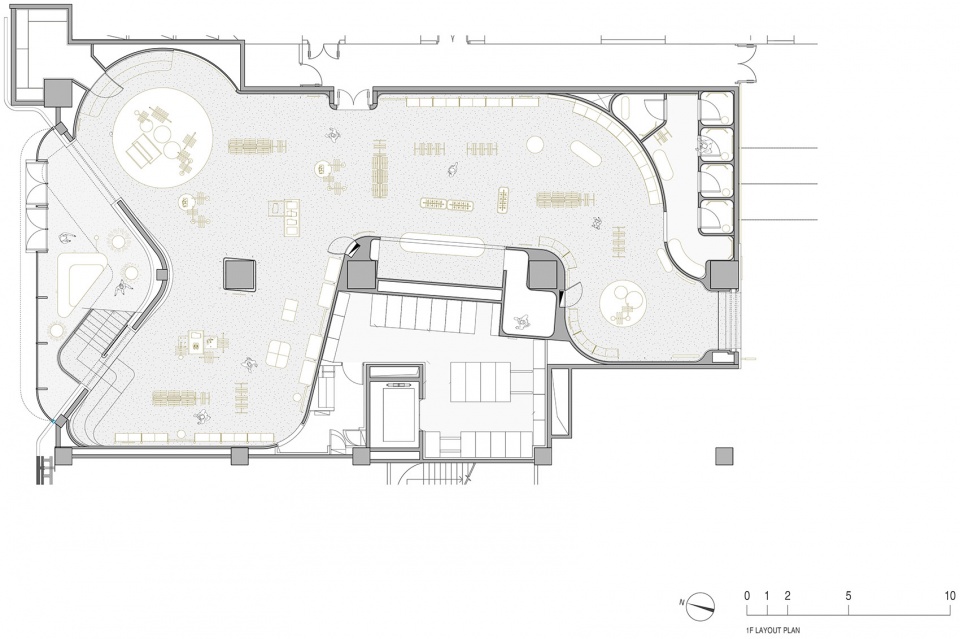
▼首层平面 ©AIM恺慕建筑设计

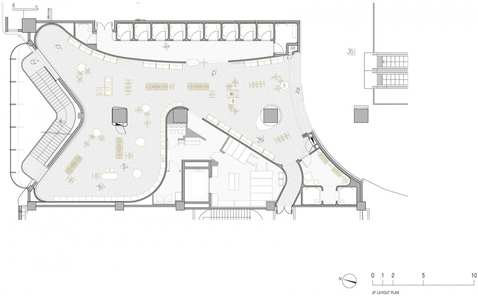
▼二层平面 ©AIM恺慕建筑设计

业主:露露乐蒙贸易(上海)有限公司
项目地点:中国上海嘉里中心
建筑面积:1,041平方米
建成时间:室内设计2023.03;外立面2023.08
设计范围:立面以及室内改造
设计总监:Wendy Saunders,Vincent de Graaf
项目建筑师:安有珍, 郭鹏
设计团队:Alba Galan, 瞿丰瑜, 王嘉陈, 雷曌华, Victor Mongin, 贾文昭, 陆可贤
软装团队:Lili Cheng,戴维莎
施工方:壁川设计事务所
灯光设计:LPA 照明设计
摄影:Dirk Weiblen
撰文:AIM恺慕建筑设计
发表评论
最新评论
相关阅读
 投稿
 投稿
 
   
     
     
     
      
