上海美国学校探究与设计中心
来源:匿名网友投稿 2016-11-18
项目地点:中国上海
完成时间:2016年
项目类型:基础教育
项目面积:3000平方米
专业摄影:沈忠海
上海美国学校探究与设计中心是对浦西校区高中部原有二层空间进行的一次颠覆性的设计改造的结果。在空间改造规划设计的全过程当中,Perkins+Will与上海美国学校浦西校区的运营及教学人员组建了一支综合项目团队,将前瞻性的教学理念、追求梦想的教学使命和培养全球化公民的发展愿景创造性地诠释到全新的学习空间当中,通过“发现-解读-构思-试验-演化”这五大步骤推导出最终的设计解决方案。
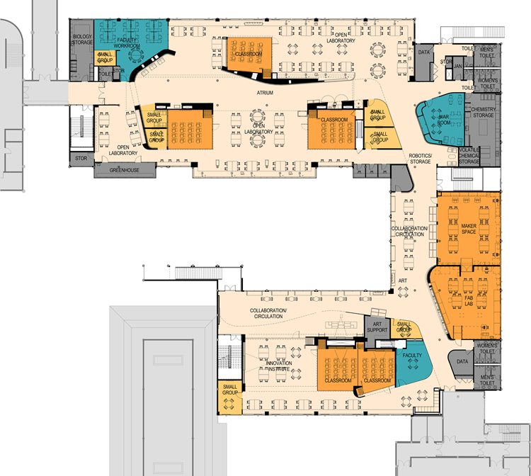
本项目将原有的3000平方米的“工厂模式型”传统教学空间打通为开放空间,在反向C型楼面上利用单边构成三大片区,分别是自然科学区、创作制造区和创新研究区。三大功能片区相互重叠,进而形成多重功能区,激发学生之间的互动联系和学科之间的知识联系。
改造后的空间形成了多种多样的开放创新型的课业项目实验区和小组讨论区,制作区和模型实验室的资源与整个学校进行共享,鼓励学生将创意动手化为现实,并通过各种技术支持进行成果展示。创新研究区尤其将自然科学、数学、社会研究和英语等学科的教师聚合起来,与小型学生群体共同开展跨学科的项目专题学习活动。
改造后的教学模式从一位老师负责一间固定教室的教学模式转为多名老师以集体形式进行教学安排,根据课程需要在多元化的空间开展教学,根据学生规模的需要利用移动隔断快速改变空间配置。
新的学习空间设计了大量的可书写面,其中包括移动隔断和墙面等等,同时还配有常规显示屏和互动显示屏(配Apple TV),使学生得以在模拟和数字世界间快速转换。原本单纯的走道空间现在也成了利用率高的可用空间,用于支持各类活动和非正式的学生群体空间。
这座改造完成的设施将极富创意的解决方案呈现到师生眼前,创造了对二十一世纪学习活动具有积极支持作用的空间,以灵活应变的空间为未来的教育发展做好准备。
上海美国学校探究与设计中心项目(图片来源:Perkins+Will)
上海美国学校探究与设计中心项目(图片来源:Perkins+Will)
上海美国学校探究与设计中心项目(图片来源:Perkins+Will)
上海美国学校探究与设计中心项目(图片来源:Perkins+Will)
上海美国学校探究与设计中心项目(图片来源:Perkins+Will)
上海美国学校探究与设计中心项目(图片来源:Perkins+Will)
上海美国学校探究与设计中心项目(图片来源:Perkins+Will)
上海美国学校探究与设计中心项目(图片来源:Perkins+Will)
上海美国学校探究与设计中心项目(图片来源:Perkins+Will)
上海美国学校探究与设计中心项目(图片来源:Perkins+Will)
上海美国学校探究与设计中心项目(图片来源:Perkins+Will)
上海美国学校探究与设计中心项目(图片来源:Perkins+Will)

改造前高中部二层平面图(图片来源:Perkins+Will)

改造后高中部二层平面图(图片来源:Perkins+Will)
发表评论
最新评论
投稿



